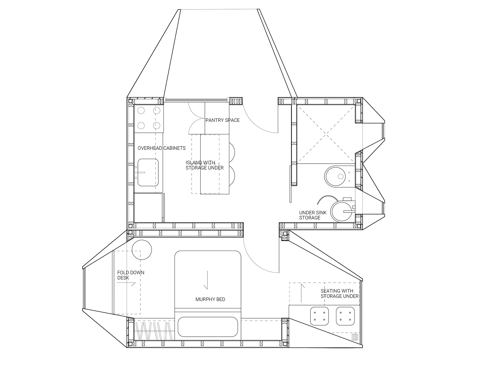
Basic essentials, for the single or two-person family with a bed separated from the work zone, to fully decompress when going to sleep. A small but versatile kitchen, equipped enough for the ability to cook healthily and affordably. A bathroom of reasonable size for self-care needs, a shower with just enough space for storage of products and room to spin and maneuver. Natural lighting avoids views of the neighbors, except in community spaces when she chooses to open her unit up to this socialization. Adaptable, flexible, live and work-related furniture, so the user may save space and store work when leisure time arises. But what the user needs may differ from what others need. The adaptability of the formulation of the unit depends upon whether it is made for the individual, the roommates, or the full suite of people. One aperture collects rainwater (living room) and grows plants within the pocket, operable window allows for self-watering and cooling from the plant system.